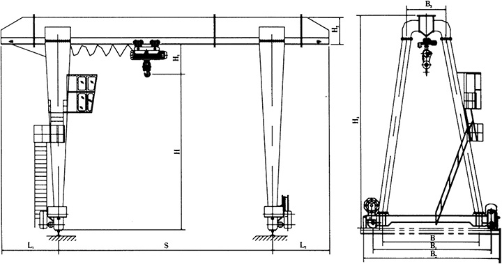
MH型電動葫蘆門式起重機與CD MD等型號的電動葫蘆配套使用,是一種有軌運行的中小型起重機,其適用起重量3~20噸,適用跨度12~30米,工作環境-20℃~+40℃內。








簡介—— MH型電動葫蘆門式起重機與CD MD等型號的電動葫蘆配套使用,是一種有軌運行的中小型起重機,其適用起重量3~20噸,適用跨度12~30米,工作環境-20℃~+40℃內。本產品為一般用途起重機,多用于露天場所及倉庫的裝卸或抓取物料,本產品有地面操縱和室內操縱兩種型式。








ME型雙小車通用門式起重機是比較特殊的一款雙梁門式起重機,之所以說它特殊,是因為…
了解詳情MG型桁架龍門吊是一種花架梁型的龍門吊,該系列花架龍門吊具有重量輕,抗風性好,價…
了解詳情MH型電動葫蘆門式起重機與CD MD等型號的電動葫蘆配套使用,是一種有軌運行的中小…
了解詳情MH型電動葫蘆門式起重機與CD、MD等型號的電動葫蘆配套使用,是一種有軌運行的中…
了解詳情1873855533918738555339
郵箱632912729@qq.com632912729@qq.com
18738555339
微信二維碼
在線客服