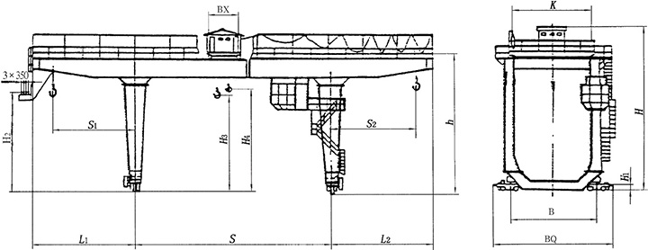
1.起重量45噸或者50噸地鐵出渣機該型號起重機是我公司根據地鐵施工的使用要求及工藝條件,結合通用門式起重機研發出來的專用門吊,專用于地鐵施工時翻轉倒泥及吊運管片。起重機由門架、小車(裝有起升機構,小車運行機構及液壓翻轉機構)、大車運行機構、司機室及電氣設備等組成。根據倒土方向的不同,支腿結構形式分A型和U型兩種形式。大車運行機構采用8輪4驅動形式,并設有防風用夾軌器,起重機正常工作時,夾軌器的夾鉗離開軌道。








簡介—— 該型號地鐵出渣機是我公司根據地鐵施工的使用要求及工藝條件,結合通用門式起重機研發出來的專用門吊,專用于地鐵施工時翻轉倒泥及吊運管片。起重機由門架、小車(裝有起升機構,小車運行機構及液壓翻轉機構)、大車運行機構、司機室及電氣設備等組成根據倒土方向的不同,支腿結構形式分A型和U型兩種形式。








掃一掃更精彩
如果您對此產品感興趣! 請直接聯系河南中貫橋梁建設工程有限公司!
ME型雙小車通用門式起重機是比較特殊的一款雙梁門式起重機,之所以說它特殊,是因為…
了解詳情MG型桁架龍門吊是一種花架梁型的龍門吊,該系列花架龍門吊具有重量輕,抗風性好,價…
了解詳情MH型電動葫蘆門式起重機與CD MD等型號的電動葫蘆配套使用,是一種有軌運行的中小…
了解詳情MH型電動葫蘆門式起重機與CD、MD等型號的電動葫蘆配套使用,是一種有軌運行的中…
了解詳情1873855533918738555339
郵箱632912729@qq.com632912729@qq.com
18738555339
微信二維碼
在線客服